
Новая квартира — новые хлопоты: как сократить расходы на ремонт
Почти половина новоселов сталкивается с непредвиденными сложностями: исправление дефектов строителей может потребовать дополнительных расходов в размере 10–500 тыс. рублей. Однако этих затрат можно избежать, если воспользоваться несколькими практичными советами.





На первом этапе вы подробно рассказываете о своих мечтах, вкусах и предпочтениях, делитесь привычками и образом жизни. Мы учитываем особенности каждого члена семьи — даже такие детали, как рост, телосложение или то, левша человек или правша.
Совместно мы подберём подходящую стилистику для вашего дома и рассмотрим примеры интерьеров, которые ближе всего вам по настроению.
Также обсудим необходимое количество техники, планируемой к использованию, и определим приоритеты по бюджету: будет ли акцент сделан на премиальные отделочные материалы или же на подбор качественной брендовой мебели.
Мы разрабатываем планировочное решение, где тщательно распределяем жилое пространство на зоны и определяем удобное расположение мебели и перегородок. В работе учитываются ваши индивидуальные предпочтения, площадь и особенности объекта, а также строительные нормы.
Каждая деталь продумывается заранее: ширина проходов, высота предметов, удобство открывания дверей и выдвижных систем. Такой подход позволяет создать гармоничное и функциональное пространство, которое станет основой для дальнейшей работы над дизайном интерьера.
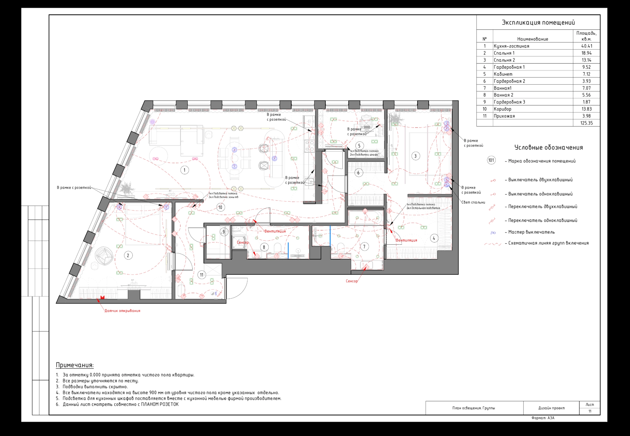
Мы подготовим полный дизайн проект, включающий весь комплект рабочих чертежей и схем, необходимых для строителей. Это позволит реализовать задуманный интерьер точно в соответствии с проектом, без ошибок и недоразумений.
В пакет входят развертки, планы и разрезы, которые дают подрядчикам чёткое понимание всех деталей. Благодаря этому можно заранее составить корректную смету, контролировать стоимость и избежать лишних расходов в процессе ремонтных работ.
Мы полностью берём на себя процесс комплектации объекта — от подбора мебели и сантехники до организации поставок отделочных материалов. Вам не нужно тратить время на поиск и переговоры: мы работаем напрямую с надёжными поставщиками и проверенными подрядчиками.
Наши специалисты контролируют все этапы: подготовку и проверку счетов, согласование сроков доставки, замену товаров при браке или поиск аналогов, если нужная позиция снята с производства. Это обеспечивает бесперебойный процесс и гарантирует, что все выбранные элементы интерьера окажутся на объекте вовремя и в идеальном качестве.
Заказ дизайн-проекта кухни — это возможность продумать все детали заранее. Решить задачу помогут наши дизайнеры интерьера. Они быстро и качественно разработают дизайн-проект под ключ, составят проект отопления, водоснабжения, вентиляции, позаботятся о демонтаже перегородок, составят схему размещения осветительных приборов, предоставят необходимые чертежи и документацию. По вашему желанию подберут мебель и элементы декора.
Проектирование кухни — это несложно, если подойти правильно. Мы используем точные данные замеров и помогаем определиться с планировкой, материалами и техникой.
Наша дизайн студия готова предложить вам полный комплекс услуг: от замеров и разработки дизайн проекта кухни до сдачи готового интерьера. Мы создадим для вас готовый дизайн проект, который объединяет комфорт, эстетику и функциональность. Чтобы заказать дизайн проект кухни, оставьте заявку на сайте или позвоните нам. Мы с удовольствием поможем вам превратить стандартную квартиру в уютное и современное пространство.






























В стандартную комплектацию дизайн интерьера кухни входят нижние шкафы, навесные секции кухонного гарнитура, пеналы для холодильника и встроенной бытовой техники, открытые полки для удобного хранения, а также модули под мойку и плиты. По желанию можно добавить угловые элементы, духовой шкаф, барные стойки, выкатные системы и обеденную зону. Выбираются фасады и столешницы которые будут выглядеть стильно и соответствовать условиям вашей кухни.
При разработке проекта кухни можно выбрать разные направления:
Мы подберём стиль, который будет удобным именно для вас и сделает кухню одновременно красивой и функциональной.